EN /
01 / 07
Hospitality

Qiandao Lake Retreat

千岛湖秘境民宿

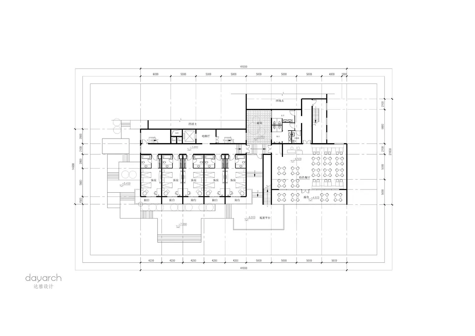
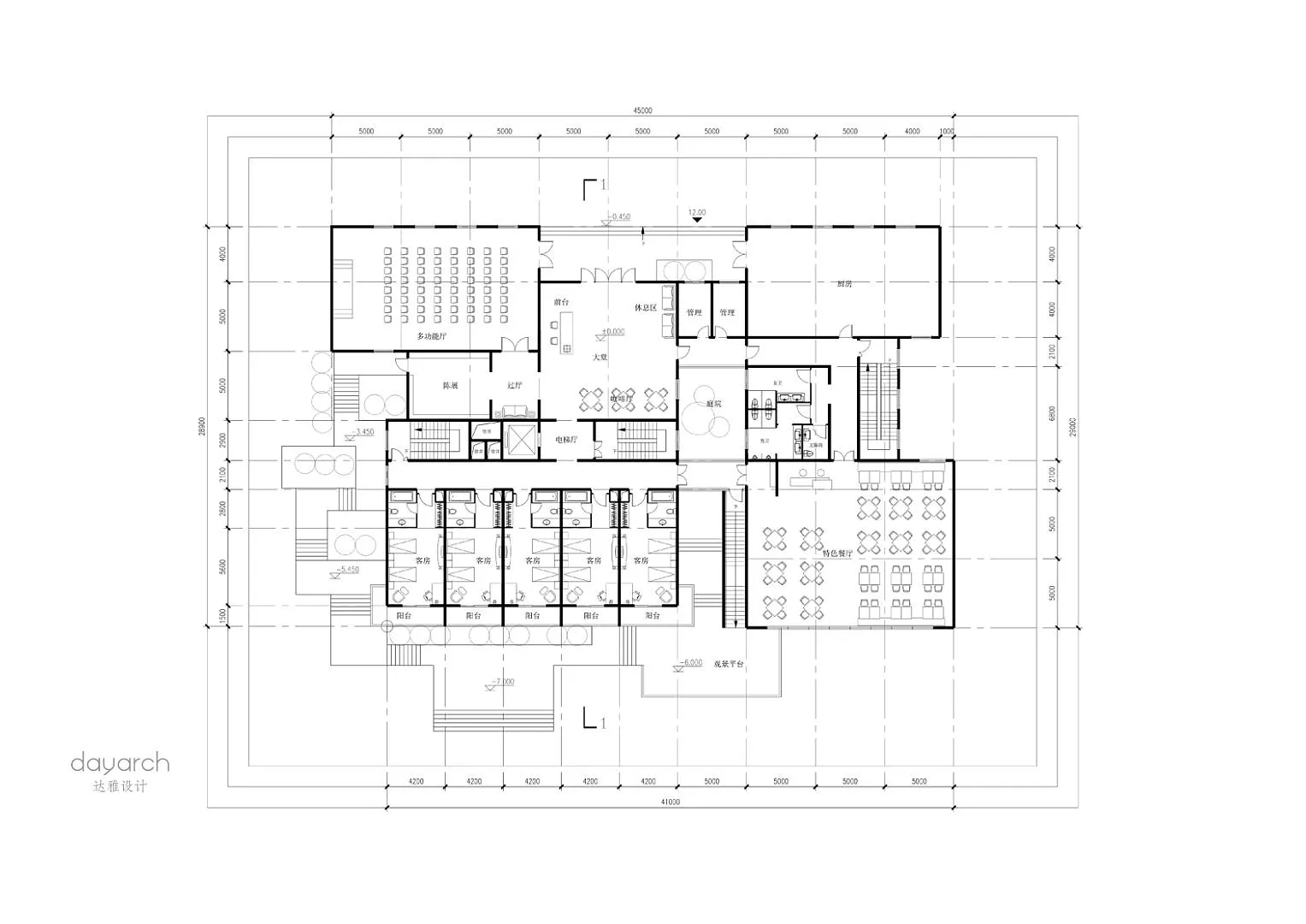
Situated by Qiandao Lake, this boutique retreat harmonizes seamlessly with its natural surroundings. The design ingeniously adapts to the site's original topography, creating tiered viewing terraces and a waterfront platform that subtly interacts with changing water levels. Spatially, the south-facing guest rooms and the partially elevated restaurant feature expansive terraces to maximize panoramic lake views. The architecture combines modern geometric volumes with traditional pitched roofs, adopting a restrained form that appears as if it organically grew from the lakeside to offer a tranquil sanctuary.

Location Hangzhou, China
Year 2024
Area 2050 ㎡
Client Private
Scope Architecture, Interior Design, Landscape
Next Project
Residential

Ghana Mixed-Use Community