EN /
01 / 08
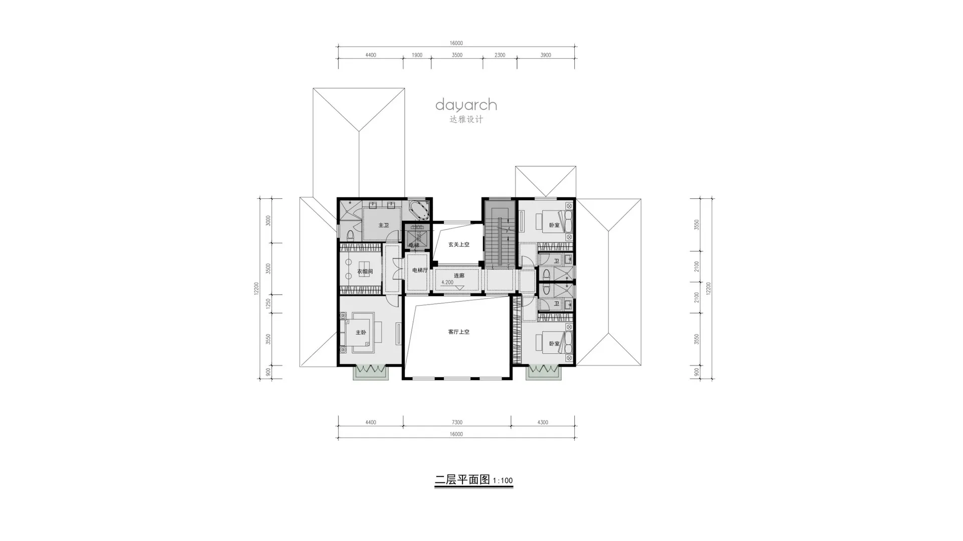
住宅

阿克拉核心商住区

Ghana Mixed-Use Community

本项目位于加纳首都阿克拉的核心区域,是一处融合高端商业与奢华居住体验的综合型社区。整体规划涵盖了经典的欧式独栋别墅、联排别墅以及视野开阔的高级公寓,精准回应了高净值人群的多元化居住需求。 设计以纯正欧洲建筑美学与现代工艺相融合,彰显对品质的极致坚守。严谨的体量比例与奢华的材质肌理,共同塑造出高度专属且私密的空间序列,为阿克拉树立国际顶级居住的全新标杆。

位置 加纳 阿克拉
年份 2024
面积 32400 ㎡
客户 开发商
服务范围 建筑设计, 规划设计
下一个项目
展示中心

张家港示范区