01 / 06
住宅
湖州别墅项目
Huzhou Villa
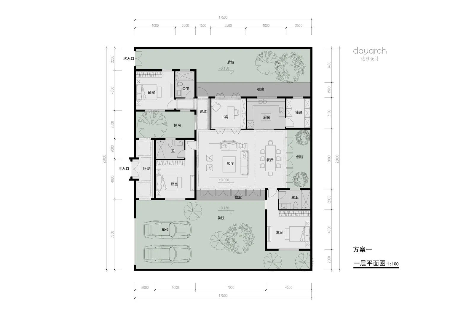
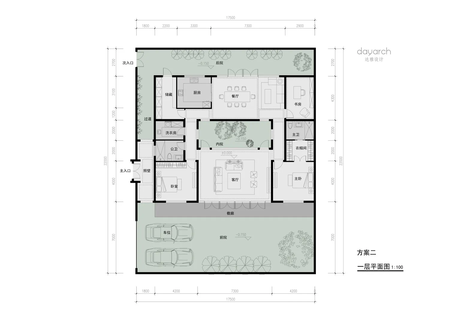
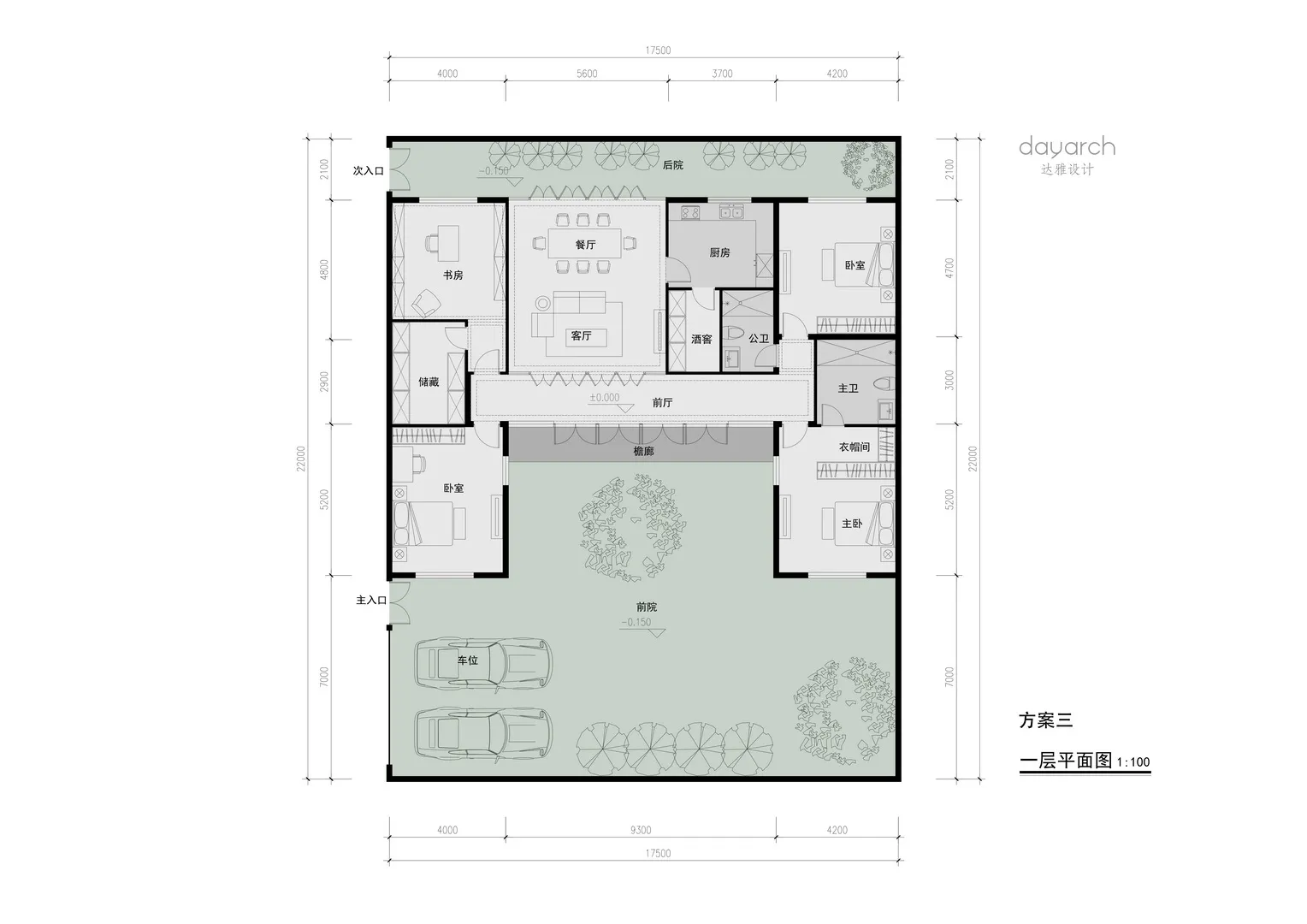
本项目位于湖州乡村,是一处为业主量身定制的退休“桃源”居所。设计秉持“外隐内奢”的理念,建筑外观低调内敛,巧妙融入乡村的自然环境;内部则构筑了极具活力的合院空间,完美承载了家族聚会、静谧阅读与休闲娱乐等多重生活场景。 为精准契合业主对纯粹生活的向往,团队通过严密的空间推演,同步探索了三种不同的平面布局方案,旨在以现代建筑语汇重塑传统院落的诗意生活。
下一个项目
住宅
Huzhou Villa
本项目位于湖州乡村,是一处为业主量身定制的退休“桃源”居所。设计秉持“外隐内奢”的理念,建筑外观低调内敛,巧妙融入乡村的自然环境;内部则构筑了极具活力的合院空间,完美承载了家族聚会、静谧阅读与休闲娱乐等多重生活场景。 为精准契合业主对纯粹生活的向往,团队通过严密的空间推演,同步探索了三种不同的平面布局方案,旨在以现代建筑语汇重塑传统院落的诗意生活。